乐天堂首页|足球世界杯竞猜平台

萬眾國際家具 - 集生產、設計、銷售于一體的深圳辦公家具生產直營廠商!
全球服務!遠銷香港、美國、加拿大、澳洲、意大利、韓國、日本、中東、俄羅斯、中亞等國家和地區產品多樣,18年行業經驗,所有產品環保認證,質保10年,并且兩年免費拆裝
全國咨詢熱線400-002-2280
137 9827 0031
當前位置:首頁>圖集>最新簽約>藍晶微生物

藍晶微生物

藍晶微生物

項目名稱:北京藍晶微生物科技

項目面積:2000平方米

設計團隊:萬眾-深圳

項目風格:簡約時尚

項目產品:辦公空間家具配套


      辦公區以經典黑白灰配色為主調,白色工位、配以隨處可見的綠植盆栽,還布置有綠植榻榻米,讓整個空間綠意盎然,生機勃勃,便于員工深度思考、激發創作靈感。


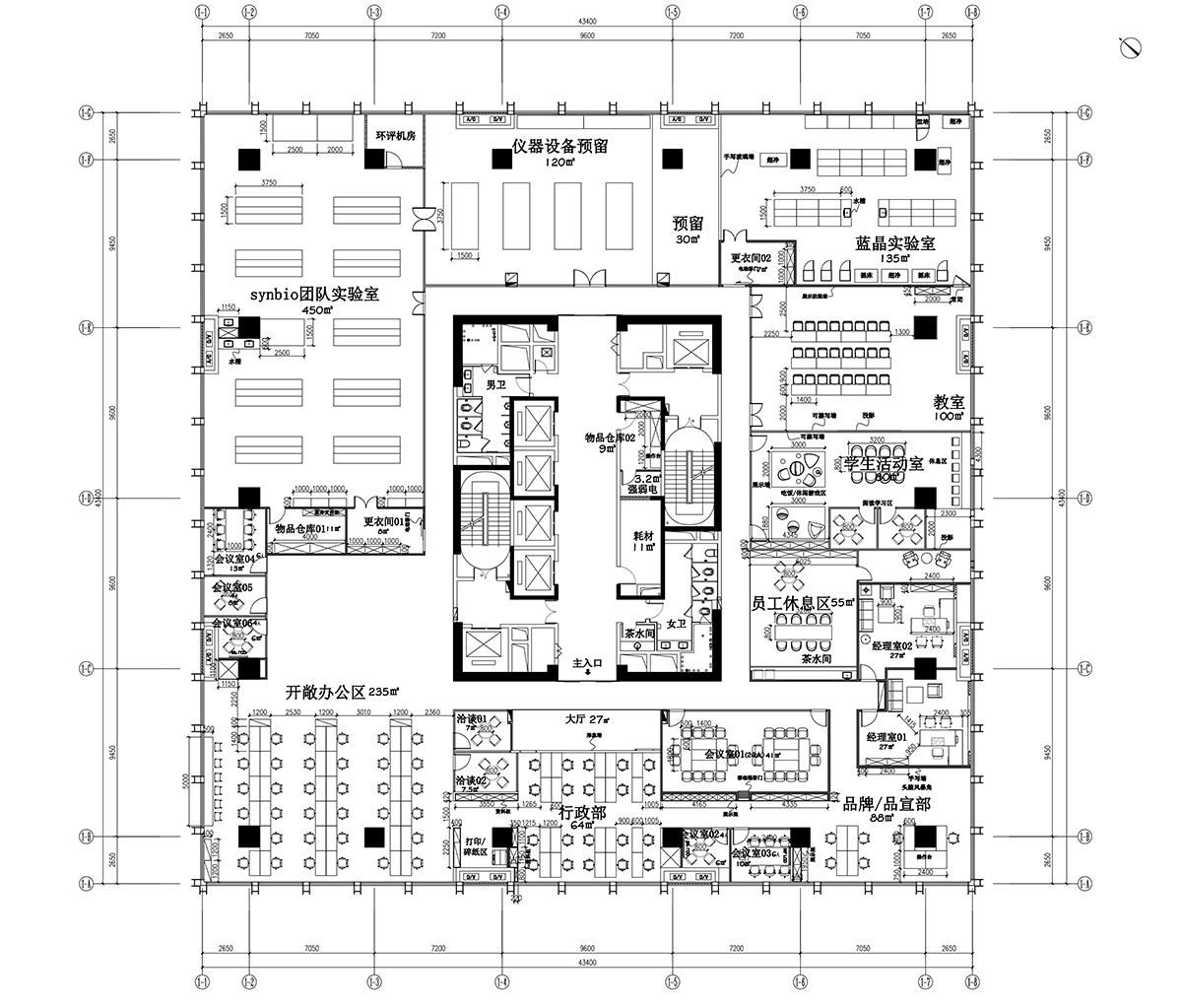
藍晶辦公室平面圖 -0525-1_00.png

平面圖

0d23d33e734c622ed1d6ffb4f91c97d.jpg

開業大吉

fa3543231d3c8a9961e091c2fb50413.jpg

公共區

87a74952d5a24aa7fa4a48d02c9975f.jpg

洽談室

a3f4d78242b5bdd67f786a7cf29eb8b.jpg

洽談室

d5fde712b83c43b60c7303577e43c74.jpg

實驗區

318107d25f7179121cb103b7c97850f.jpg

實驗區d2e3850a3c6089ee65d173030be9254.jpg

辦公區

微信圖片_20220512172557.jpg

辦公區

生物2.jpg

辦公區

生物3.jpg

辦公室

c78954e2d86549eb3d80ec78caab3c8.jpg

辦公室

休閑區

休閑區


上一個案例:閃魔數碼
下一個案例:鳳鳴翔天科技